克萊因藍+灰混凝土,PAN AM 泛美首爾旗艦店: NiiiZ Design Lab
圣水洞(Seongsu-dong)是目前韓國當紅的熱門景點之一。此前,圣水洞充滿了如印刷店、手工制鞋店、皮革廠等各種制造業相關的場所。現在,這一區域的發展和諧地融合了它的過去與現在,創造了獨屬于這個場所的體驗,并成為了可以吸引千禧一代和 Z 世代的絕佳打卡點。


圣水洞既有代表過去的老舊工廠或庫房,也有代表現在的改造建筑,同時這片區域有著許多獨具一格的新生場所,并散發著有別于首爾其他如弘大及梨泰院等老牌潮流地的獨特氛圍。隨著迪奧、Musinsa、LCDC 等大牌在這一區域開設旗艦店,圣水洞已然晉升為時尚品牌的熱點聚集地。而于近期開業的 PAN AM 泛美首爾旗艦店則呈現著以詮釋圣水洞特色為靈感的全新設計。


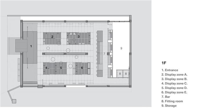
這一旗艦店的業主與圣水洞 LCDC 旗艦店的所有者相同。在這一項目中,他們要求建筑師探索屬于圣水洞的區域特色,并結合當前世代的視角,將 PAN AM 泛美如《貓鼠游戲》般經典的“復古、老舊美國品牌”形象完全拋之腦后,創造屬于圣水洞的 PAN AM 泛美。根據業主的需求,建筑師著眼于將原本生產膠帶的工廠改造為新旗艦店,并保有原來的空間。而在經歷了時間及疫情的歷練后,提出了“平凡與非凡的界限”設計概念。


建筑師心中“平凡與非凡的界限”意在“變化”,而并非“分隔”。因此,項目不僅保有舊時生產膠帶的工廠的模樣,還將屬于“圣水洞”的區域特色與 PAN AM 泛美的品牌概念融入了全新改造的空間。由此,設計概念中的“界限”體現在新、舊空間之中模糊的分界:建筑師通過將燈具安裝在地面殘留的膠帶痕跡頂部,打造有別于普通吊頂燈的落地燈,并營造出了“顛倒”的非凡意境。



此外,用于分隔空間的墻體由半透明的聚合材料及玻璃打造,由此賦予了每個空間以“重疊感”,同時這些區域的開口也與其他空間的動線相互連接,由此讓所有空間和其中的流線可以保持模糊、不可分割的狀態。同時,用于打造墻體邊緣的金屬邊框或互相重合、或錯位、或被用作為連接各空間的元素,這個原本用于定義墻體邊緣的元素從而被重新詮釋為空間的“連接”或“分隔”。

為了體現圣水洞的地域特色,建筑師將從立面入口通往內部空間的主門廳通道設計為圓柱形體量,并讓其與老舊工廠的混凝土墻 T 形相接,從而將入口與出口的人流巧妙地分離,同時,內部空間被“遮掩”,由此引起了行人們想要對內部空間一探究竟的好奇心。此外,這個通過過渡空間前往內部商店的過程也隱喻著“從平凡的現實(外界)到非凡的空間(內部)”的穿越,而從入口至內部空間的圓柱形通道則營造了“旅行”前的刺激體驗感。


分享文章,請標明來源: http://www.bj54.com.cn/xuni/1267.html 免責聲明: 圖片內容來源網絡,本網站對作品圖片的版權未作證實,對作品的原創性、真實性不作保證,也不承擔由此產生的法律責任。如對作品版權有疑議,請及時與我們電話聯系:400-035-0358 進行刪除.